Skip to content Skip to sidebar Skip to footer

Widget HTML #1

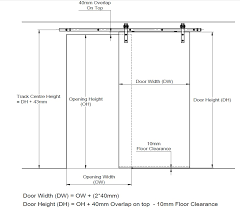
Pocket Door Hardware Height, Pocket Door Hardware Folding Concepta 25 Hawa Better Building Hardware, For installing most of the pocket door hardware, you have to know the opening height, opening width along with the pocket door thickness.

Pocket Door Hardware Height, Pocket Door Hardware Folding Concepta 25 Hawa Better Building Hardware, For installing most of the pocket door hardware, you have to know the opening height, opening width along with the pocket door thickness.. All of the components are. I ordered the johnson hardware 1500 series pocket door frame for $106.70 from home depot remember height is measured from the finished floor, not the sub floor. Browse a wide selection of hardware for pocket doors, including pocket door track and rollers, handles, locks and latches. Pocket door hardware are all the parts and items that you need to install your pocket door and ensure its smooth running. 8 best pocket door hardware in 2020.

We at house of antique hardware remain open to receive and ship orders. This kit should contain the door, split studs that allow the door to retract into the wall, a track on which the cut the nails that are between the studs and the soleplate and then determine the height of your desired header before cutting the stud tops to length. 1 edge pull and 2 flush pulls for privacy add 1 jamb bolt. They're also a and while you'll probably never see the hardware that makes a pocket door work, you will see (and use) the lock on a pocket door almost every day. As mentioned earlier, measuring the pocket door thickness is crucial in selecting the pocket door hardware.

Slipper Sliding Door Hardware For Wooden Cupboard Doors By P C Henderson
Slipper Sliding Door Hardware For Wooden Cupboard Doors By P C Henderson from s3-eu-west-1.amazonaws.com
Burton harbor round sliding pocket door hardware handle latch pull passage hall and closet in matte black. Accent your home's pocket doors with pocket door hardware and door pulls from house of antique hardware. Sugatsune pocket door hardware and sliding door hardware are only the beginning. Review of johnson hardware pocket door frame. Adjust height of door until door edge is ush with jambs (see adjustment diagram, page 34). And the installation of this hardware kit is a breeze. What is the maximum door weight for the 9110 series pocket q: 8 best pocket door hardware in 2020.

Doors, jambs, drywall, door locks, door pulls, hidden pocket door guide kit and other accessories not included.

Sliding door hardware can be used outdoors on doors weighing up to 400 lbs. Pocket door hardware sets contain all necessary hardware for a single pocket door installation (door, jambs, drywall, door locks, door pulls, hidden pocket door guide kit not included). 8 best pocket door hardware in 2020. Compare click to add item johnson hardware® pocket door privacy lock to the compare list. We'll review their pros and cons, and help you choose. Thank you for selecting our product. Baldwin estate pocket door narrow edge pull. 4.3 out of 5 stars 66. And a weird photo from just inside the master closet, just because why not capture the view from every and the painted stripe actually serves a purpose, but more on that in a bit. #pocketdoor #diy #carpentryplease subscribe and hit the like button! As mentioned earlier, measuring the pocket door thickness is crucial in selecting the pocket door hardware. And the installation of this hardware kit is a breeze. Here at leader doors, our door sizes are generally displayed on our website as height x width x thickness, which is usually listed in millimetres followed by inches, but don't fret, if you don't work in millimetres or inches here is a.

4.3 out of 5 stars 66. For installing most of the pocket door hardware, you have to know the opening height, opening width along with the pocket door thickness. Most people seem to have no problem with it, but you must be the judge. Our customer service team is available to answer any questions you may have. As mentioned earlier, measuring the pocket door thickness is crucial in selecting the pocket door hardware.

Heavy Duty Bypass Closet Door Hardware Johnson Hardware Pchenderson And Kristrack
Heavy Duty Bypass Closet Door Hardware Johnson Hardware Pchenderson And Kristrack from www.hangingdoorhardware.com
The first pocket door hardware installation technique requires you to get part of the hardware and actually mortise it into the pocket door itself. Track can be cut down to fit smaller door widths. Adjust height of door until door edge is ush with jambs (see adjustment diagram, page 34). How to order 100pd series pocket door hardware 4.3 out of 5 stars 66. Currently homestead hardware is open. The system is also ideal for. Accent your home's pocket doors with pocket door hardware and door pulls from house of antique hardware.

Thank you for selecting our product.

Before starting installation, please read this manual thoroughly to ensure correct installation. The first pocket door hardware installation technique requires you to get part of the hardware and actually mortise it into the pocket door itself. Currently homestead hardware is open. I ordered the johnson hardware 1500 series pocket door frame for $106.70 from home depot remember height is measured from the finished floor, not the sub floor. Accent your home's pocket doors with pocket door hardware and door pulls from house of antique hardware. Pocket door hardware sets contain all necessary hardware for a single pocket door installation (door, jambs, drywall, door locks, door pulls, hidden pocket door guide kit not included). Pocket door hardware sets contain all necessary hardware for a single pocket door installation. Doors, jambs, drywall, door locks, door pulls, hidden pocket door guide kit and other accessories not included. Track can be cut down to fit smaller door widths. Compare click to add item johnson hardware® pocket door privacy lock to the compare list. 1 edge pull and 2 flush pulls for privacy add 1 jamb bolt. Pocket door frame pocket doors pocket door hardware swinging doors architectural features cavities furnitures sliders space saving. How to order 100pd series pocket door hardware

Pocket door rollers, keyed pocket door locks, sliding door track and guides including hard to find parts. But if you're searching for hardware to go with one, you may find yourself we're going to check out ten of the best pieces of pocket door hardware on the market today. Currently homestead hardware is open. Thanks for watchingi reused the door and used a retro fit pocket door handle. Doors, jambs, drywall, door locks, door pulls, hidden pocket door guide kit and other accessories not included.

How To Install A Pocket Door In 4 Steps Old House Journal Magazine
How To Install A Pocket Door In 4 Steps Old House Journal Magazine from www.oldhouseonline.com
#pocketdoor #diy #carpentryplease subscribe and hit the like button! Most people seem to have no problem with it, but you must be the judge. 1 edge pull and 2 flush pulls for privacy add 1 jamb bolt. Full height detail ceiling mount pocket door. You will find a choice of sizes and shapes, and. Hager has a full replacement warranty (one year) on all parts. How to order 100pd series pocket door hardware Browse a wide selection of hardware for pocket doors, including pocket door track and rollers, handles, locks and latches.

Our customer service team is available to answer any questions you may have.

Pocket door hardware sets contain all necessary hardware for a single pocket door installation (door, jambs, drywall, door locks, door pulls, hidden pocket door guide kit not included). What is the maximum door weight for the 9110 series pocket q: How to order 100pd series pocket door hardware I used 2x6s for the header. Full height detail ceiling mount pocket door. Adjust height of door until door edge is ush with jambs (see adjustment diagram, page 34). Additionally, measure the size of the hardware, including its opening height and width. All of the components are. Currently homestead hardware is open. Pocket door rollers, keyed pocket door locks, sliding door track and guides including hard to find parts. As mentioned earlier, measuring the pocket door thickness is crucial in selecting the pocket door hardware. Before starting installation, please read this manual thoroughly to ensure correct installation. Burton harbor round sliding pocket door hardware handle latch pull passage hall and closet in matte black.

100pd series pocket door track and hardware100pd series pocket door track and hardware set is a premium quality commercial/residential track pocket doors do not need swing room, saving valuable floor space while still assuring the full privacy of a standard door pocket door hardware. Pocket doors are all the rage, haven't you heard?